Uus-Laagri
Uus-Laagri

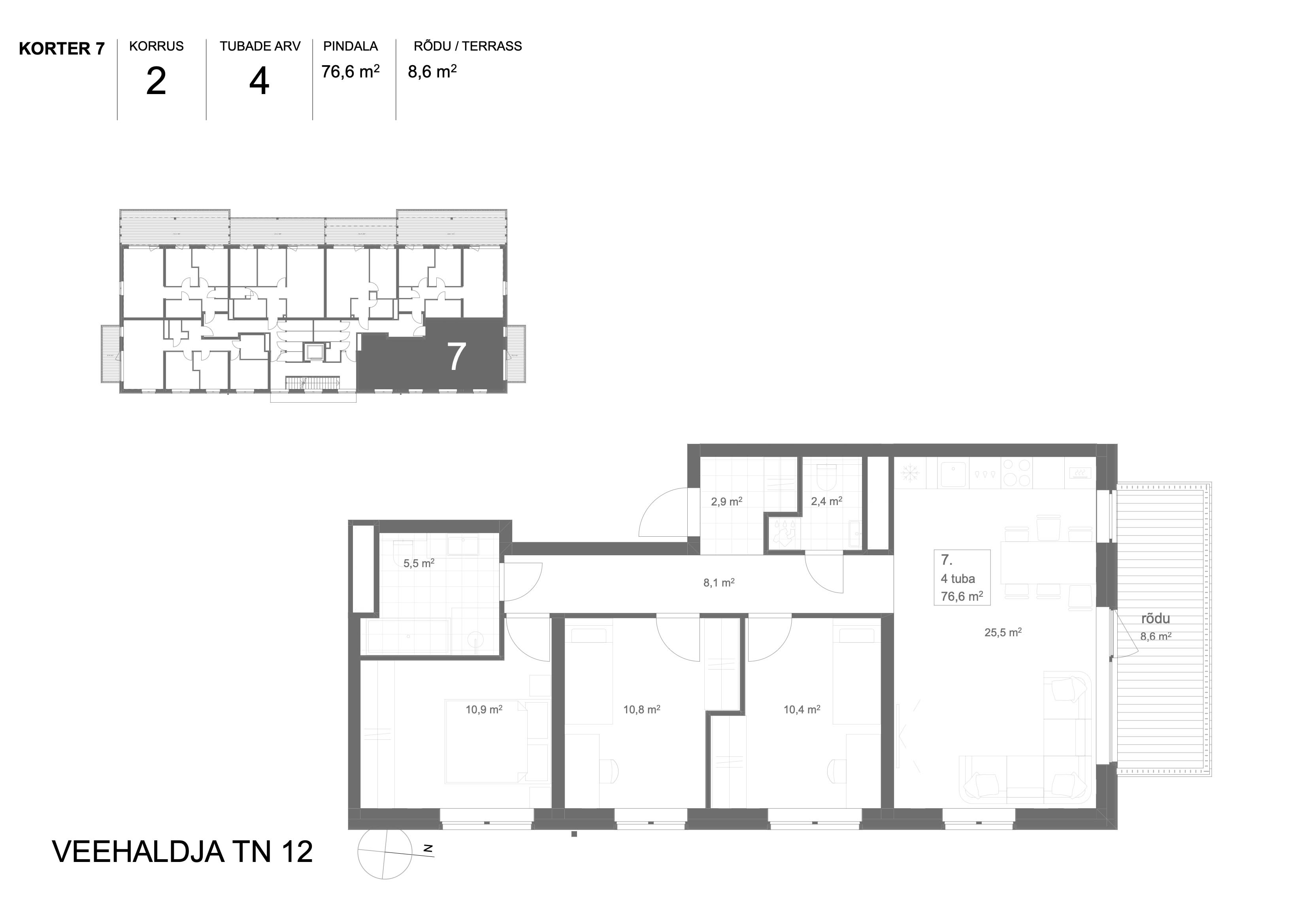
Korter 7

254 900

EUR

Korrus

2

Tube

4

Pindala

76,6 m²

Rõdu

8,6 m²

Seis

Müügis

Soovid 
rohkem teada?

Helista ja kirjuta meile juba täna!

Hea meelega jagame detailset infot kõikide korterite ja Uus-Laagri arenduse eripärade kohta.

Keith Tootsi

Müügijuht

+372 562 22 087 keith@alpina.estate

alpina.estate